Plan Pricing

$0

KETTLE CREEK PARK

M2250A3F-0DB
  • Total Area:3401 Sq. Ft.
  • Garage Area:730 Sq Ft
  • Garage Size:3
  • Stories:3
  • Bedrooms:3
  • Full Baths:2
  • Half Baths:1
  • Width:62'-0"
  • Depth:41'-0"
  • Height:25'-0"
  • Foundation:Basement
PLAN DETAILS FOR THE KETTLE CREEK PARK - PLAN M2250A3F-0DB
Area Summary
  • Total Area:3401 Sq. Ft.
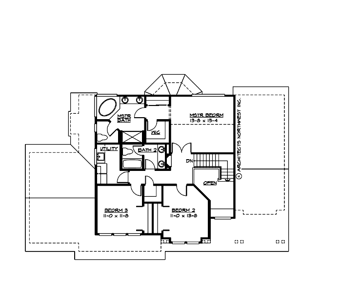
  • Main Floor:1230 Sq. Ft.
  • Upper Floor:1020 Sq. Ft.
  • Lower Floor:1151 Sq. Ft.
  • Garage Floor:730 Sq. Ft.
General Information
  • Stories:3
  • Width:62'-0"
  • Depth:41'-0"
  • Height:25'-0"
Architectural Style
  • Craftsman
  • Farmhouse
  • Northwest
Number of Rooms
  • Bedrooms:3
  • Full Baths:2
  • Half Baths:1
Garage
  • Garage Size:3
  • Garage Door Location:Front
Roof Pitches
  • Primary:6:12
Wall Heights
  • Main:8'-0"
  • Upper:8'-0"
  • Lower:9'-0"
Foundation Type
  • Daylight Basement
Roof Framing
  • Trusses
Floor Load
  • Live (lbs):40 PSF
  • Dead (lbs):10 PSF
Roof Load
  • Live (lbs):25 PSF
  • Dead (lbs):15 PSF
  • Wind:85 MPH
Design Features
  • Bonus Space @ & Lower Floor
  • Den/Office
  • Front Porch
  • Great Room
  • Laundry Room @ & Upper Floor
  • Master Bedroom @ Upper Floor Rear
  • Craftsman House Plans
  • Farmhouse Home Plans
  • Northwest Floor Plans
  • View Lot (Rear) Plans
Front Photo

Kettle Falls Park

M2250A2F-0DB
  • Total Area:3577 Sq. Ft.
  • Stories:3
  • Bedrooms:3
  • Full Baths:2
Front Rendering

Kelso Heights

M2400A2F-0DB
  • Total Area:3487 Sq. Ft.
  • Stories:3
  • Bedrooms:3
  • Full Baths:2
Please enter the zip code of your building site, then select the Go! button to view pricing information for this house plan.

Recent View

© 2023 Architects Northwest All Rights Reserved Powered By: Visualwebz