Plan Pricing

$0

ARDEN

M2377A2F-0
  • Total Area:2377 Sq. Ft.
  • Garage Area:434 Sq Ft
  • Garage Size:2
  • Stories:2
  • Bedrooms:3
  • Full Baths:2
  • Half Baths:1
  • Width:40'-0"
  • Depth:65'-0"
  • Height:27'-0"
  • Foundation:Crawl Space
PLAN DETAILS FOR THE ARDEN - PLAN M2377A2F-0
Area Summary
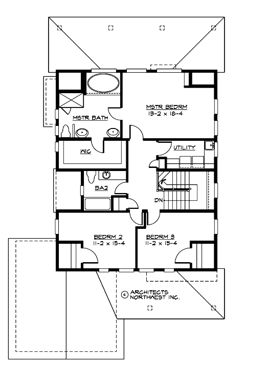
  • Total Area:2377 Sq. Ft.
  • Main Floor:1260 Sq. Ft.
  • Upper Floor:1117 Sq. Ft.
  • Garage Floor:434 Sq. Ft.
General Information
  • Stories:2
  • Width:40'-0"
  • Depth:65'-0"
  • Height:27'-0"
Architectural Style
  • Bungalow
  • Cottage
  • Craftsman
Number of Rooms
  • Bedrooms:3
  • Full Baths:2
  • Half Baths:1
Garage
  • Garage Size:2
  • Garage Door Location:Front
Roof Pitches
  • Primary:9:12
Wall Heights
  • Main:9'-0"
  • Upper:8'-0"
Foundation Type
  • Crawl Space
Roof Framing
  • Trusses
Floor Load
  • Live (lbs):40 PSF
  • Dead (lbs):10 PSF
Roof Load
  • Live (lbs):25 PSF
  • Dead (lbs):15 PSF
  • Wind:85 MPH
Design Features
  • Den/Office
  • Front Porch
  • Great Room
  • Laundry Room @ & Upper Floor
  • Master Bedroom @ Upper Floor Rear
  • Bungalow House Plans
  • Cottage House Plans
  • Craftsman House Plans
  • Narrow Lot House Plans
  • Small House Plans
Front Photo

Arden Park

M2377A2F-0DB
  • Total Area:3281 Sq. Ft.
  • Stories:3
  • Bedrooms:4
  • Full Baths:3
Please enter the zip code of your building site, then select the Go! button to view pricing information for this house plan.

Recent View

© 2023 Architects Northwest All Rights Reserved Powered By: Visualwebz