Plan Pricing

$0

TALUS RIDGE

M2520C3FT-0DB
  • Total Area:3368 Sq. Ft.
  • Garage Area:552 Sq Ft
  • Garage Size:3
  • Stories:3
  • Bedrooms:4
  • Full Baths:3
  • Half Baths:1
  • Width:40'-0"
  • Depth:55'-0"
  • Height:29'-0"
  • Foundation:Basement
PLAN DETAILS FOR THE TALUS RIDGE - PLAN M2520C3FT-0DB
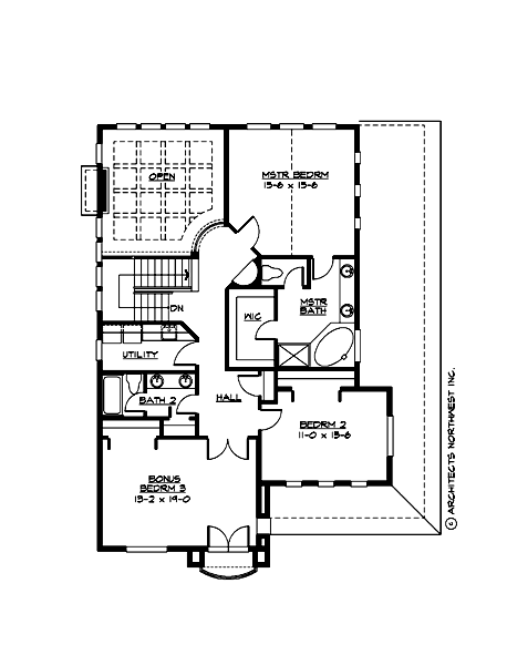
Area Summary
  • Total Area:3368 Sq. Ft.
  • Main Floor:1378 Sq. Ft.
  • Upper Floor:1295 Sq. Ft.
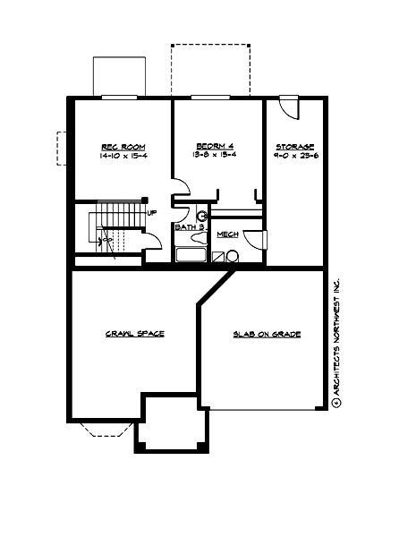
  • Lower Floor:695 Sq. Ft.
  • Garage Floor:552 Sq. Ft.
General Information
  • Stories:3
  • Width:40'-0"
  • Depth:55'-0"
  • Height:29'-0"
Architectural Style
  • Hampton
  • Shingle
  • Traditional
Number of Rooms
  • Bedrooms:4
  • Full Baths:3
  • Half Baths:1
Garage
  • Garage Size:3
  • Garage Door Location:Front
  • Garage Type: Tandem
Roof Pitches
  • Primary:8:12
  • Secondary:4:12
Wall Heights
  • Main:9'-0"
  • Upper:8'-0"
  • Lower:9'-0"
Foundation Type
  • Daylight Basement
Roof Framing
  • Trusses
Floor Load
  • Live (lbs):40 PSF
  • Dead (lbs):10 PSF
Roof Load
  • Live (lbs):25 PSF
  • Dead (lbs):15 PSF
  • Wind:85 MPH
Design Features
  • Bonus Space @ & Lower Floor
  • Den/Office
  • Great Room
  • Laundry Room @ & Upper Floor
  • Master Bedroom @ Upper Floor Rear
  • Hampton House Plans
  • Shingle House Plans
  • Traditional House Plans
  • Narrow Lot House Plans
Front Exterior

Avalon

M2520A3FT-0
  • Total Area:2520 Sq. Ft.
  • Stories:2
  • Bedrooms:3
  • Full Baths:2
Front Photo

Avalon Crest

M2520A3FT-0DB
  • Total Area:3215 Sq. Ft.
  • Stories:3
  • Bedrooms:4
  • Full Baths:3
Front Exterior

Hadley

M2520B3FT-0
  • Total Area:2632 Sq. Ft.
  • Stories:2
  • Bedrooms:3
  • Full Baths:2
Front Exterior

Hadley Park

M2520B3FT-0DB
  • Total Area:3327 Sq. Ft.
  • Stories:3
  • Bedrooms:4
  • Full Baths:3
Front Exterior

Talus

M2520C3FT-0
  • Total Area:2673 Sq. Ft.
  • Stories:2
  • Bedrooms:3
  • Full Baths:2
Please enter the zip code of your building site, then select the Go! button to view pricing information for this house plan.

Recent View

© 2023 Architects Northwest All Rights Reserved Powered By: Visualwebz