Plan Pricing

$0

SHELTON RIDGE

M2522A2S-0
  • Total Area:2522 Sq. Ft.
  • Garage Area:483 Sq Ft
  • Garage Size:2
  • Stories:2
  • Bedrooms:3
  • Full Baths:3
  • Width:43'-0"
  • Depth:59'-0"
  • Height:25'-6"
  • Foundation:Crawl Space
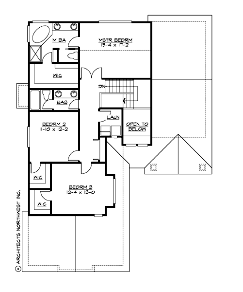
PLAN DETAILS FOR THE SHELTON RIDGE - PLAN M2522A2S-0
Area Summary
  • Total Area:2522 Sq. Ft.
  • Main Floor:1434 Sq. Ft.
  • Upper Floor:1088 Sq. Ft.
  • Garage Floor:483 Sq. Ft.
General Information
  • Stories:2
  • Width:43'-0"
  • Depth:59'-0"
  • Height:25'-6"
Architectural Style
  • Craftsman
  • Farmhouse
  • Northwest
Number of Rooms
  • Bedrooms:3
  • Full Baths:3
Garage
  • Garage Size:2
  • Garage Door Location:Side
Roof Pitches
  • Primary:6:12
Wall Heights
  • Main:9'-0"
  • Upper:8'-0"
Foundation Type
  • Crawl Space
Roof Framing
  • Trusses
Floor Load
  • Live (lbs):40 PSF
  • Dead (lbs):10 PSF
Roof Load
  • Live (lbs):25 PSF
  • Dead (lbs):15 PSF
  • Wind:85 MPH
Design Features
  • Den/Office
  • Front Porch
  • Great Room
  • Laundry Room @ & Upper Floor
  • Master Bedroom @ Upper Floor Front
  • Craftsman House Plans
  • Farmhouse Home Plans
  • Northwest Floor Plans
  • Narrow Lot House Plans
Front Rendering

Shelton

M2222A2S-0
  • Total Area:2222 Sq. Ft.
  • Stories:2
  • Bedrooms:3
  • Full Baths:2
Front Photo

Evanston

M2428A3S-0
  • Total Area:2428 Sq. Ft.
  • Stories:2
  • Bedrooms:3
  • Full Baths:3
Front Photo

Evanston Landing

M2428A3S-3
  • Total Area:2680 Sq. Ft.
  • Stories:2
  • Bedrooms:4
  • Full Baths:3
Please enter the zip code of your building site, then select the Go! button to view pricing information for this house plan.

Recent View

© 2023 Architects Northwest All Rights Reserved Powered By: Visualwebz