Plan Pricing

$0

NEWCASTLE

M3200A4ST-0
  • Total Area:3200 Sq. Ft.
  • Garage Area:775 Sq Ft
  • Garage Size:4
  • Stories:2
  • Bedrooms:3
  • Full Baths:2
  • Half Baths:1
  • Width:50'-0"
  • Depth:71'-0"
  • Height:29'-0"
  • Foundation:Crawl Space
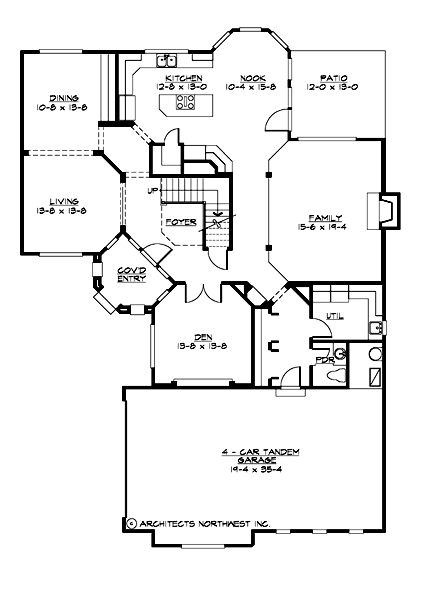
PLAN DETAILS FOR THE NEWCASTLE - PLAN M3200A4ST-0
Area Summary
  • Total Area:3200 Sq. Ft.
  • Main Floor:1785 Sq. Ft.
  • Upper Floor:1415 Sq. Ft.
  • Garage Floor:775 Sq. Ft.
General Information
  • Stories:2
  • Width:50'-0"
  • Depth:71'-0"
  • Height:29'-0"
Architectural Style
  • Hampton
  • Shingle
  • Traditional
Number of Rooms
  • Bedrooms:3
  • Full Baths:2
  • Half Baths:1
Garage
  • Garage Size:4
  • Garage Door Location:Side
  • Garage Type: Tandem
Roof Pitches
  • Primary:8:12
Wall Heights
  • Main:9'-0"
  • Upper:8'-0"
Foundation Type
  • Crawl Space
Roof Framing
  • Trusses
Floor Load
  • Live (lbs):40 PSF
  • Dead (lbs):10 PSF
Roof Load
  • Live (lbs):25 PSF
  • Dead (lbs):15 PSF
  • Wind:85 MPH
Design Features
  • Den/Office
  • Rear Porch
  • Great Room
  • Master Bedroom @ Upper Floor Rear
  • Hampton House Plans
  • Shingle House Plans
  • Traditional House Plans
  • Narrow Lot House Plans
Front Rendering

Newcastle Heights

M3200A4ST-0DB
  • Total Area:3800 Sq. Ft.
  • Stories:3
  • Bedrooms:3
  • Full Baths:2
Please enter the zip code of your building site, then select the Go! button to view pricing information for this house plan.

Recent View

© 2023 Architects Northwest All Rights Reserved Powered By: Visualwebz