Plan Pricing

$0

MORRISON

M3422A3S-0
  • Total Area:3416 Sq. Ft.
  • Garage Area:672 Sq Ft
  • Garage Size:3
  • Stories:2
  • Bedrooms:5
  • Full Baths:4
  • Width:40'-0"
  • Depth:80'-0"
  • Height:25'-6"
  • Foundation:Crawl Space
PLAN DETAILS FOR THE MORRISON - PLAN M3422A3S-0
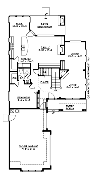
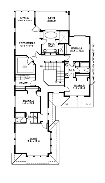
Area Summary
  • Total Area:3416 Sq. Ft.
  • Main Floor:1502 Sq. Ft.
  • Upper Floor:1914 Sq. Ft.
  • Garage Floor:672 Sq. Ft.
General Information
  • Stories:2
  • Width:40'-0"
  • Depth:80'-0"
  • Height:25'-6"
Architectural Style
  • Craftsman
  • Northwest
  • Shingle
Number of Rooms
  • Bedrooms:5
  • Full Baths:4
Garage
  • Garage Size:3
  • Garage Door Location:Side
Roof Pitches
  • Primary:4:12
Wall Heights
  • Main:10'-0"
  • Upper:9'-0"
Foundation Type
  • Crawl Space
Roof Framing
  • Trusses
Floor Load
  • Live (lbs):40 PSF
  • Dead (lbs):10 PSF
Roof Load
  • Live (lbs):25 PSF
  • Dead (lbs):15 PSF
  • Wind:85 MPH
Design Features
  • Bonus Space @ & Upper Floor
  • Den/Office
  • Front Porch
  • Great Room
  • Laundry Room @ & Upper Floor
  • Master Bedroom @ Upper Floor Rear
  • Craftsman House Plans
  • Northwest Floor Plans
  • Shingle House Plans
  • View Lot (Rear) Plans
Please enter the zip code of your building site, then select the Go! button to view pricing information for this house plan.

Recent View

© 2023 Architects Northwest All Rights Reserved Powered By: Visualwebz