Plan Pricing

$0

BAINBRIDGE FALLS

M4295A2S1F-0
  • Total Area:4629 Sq. Ft.
  • Garage Area:843 Sq Ft
  • Garage Size:3
  • Stories:2
  • Bedrooms:5
  • Full Baths:3
  • Half Baths:1
  • Width:105'-0"
  • Depth:52'-0"
  • Height:30'-6"
  • Foundation:Crawl Space
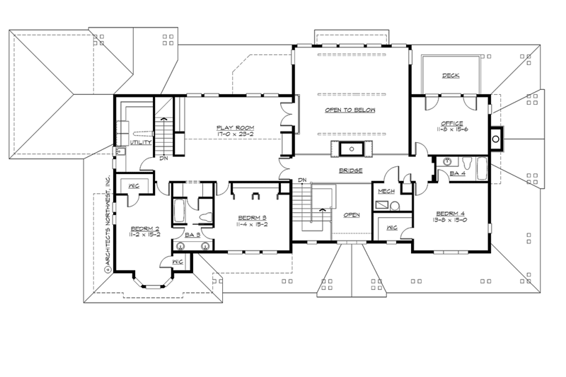
PLAN DETAILS FOR THE BAINBRIDGE FALLS - PLAN M4295A2S1F-0
Area Summary
  • Total Area:4629 Sq. Ft.
  • Main Floor:2673 Sq. Ft.
  • Upper Floor:1956 Sq. Ft.
  • Garage Floor:843 Sq. Ft.
General Information
  • Stories:2
  • Width:105'-0"
  • Depth:52'-0"
  • Height:30'-6"
Architectural Style
  • Farmhouse
  • Lodge
  • Shingle
Number of Rooms
  • Bedrooms:5
  • Full Baths:3
  • Half Baths:1
Garage
  • Garage Size:3
  • Garage Door Location:Side
Roof Pitches
  • Primary:8:12
  • Secondary:4:12
Wall Heights
  • Main:9'-0"
  • Upper:8'-0"
Foundation Type
  • Crawl Space
Roof Framing
  • Combination
Floor Load
  • Live (lbs):40 PSF
  • Dead (lbs):10 PSF
Roof Load
  • Live (lbs):25 PSF
  • Dead (lbs):15 PSF
  • Wind:85 MPH
Design Features
  • Bonus Space @ & Upper Floor
  • Den/Office
  • Wrap-Around Porch
  • Great Room
  • Laundry Room @ Main & Upper Floor
  • Master Bedroom @ Main Floor Rear
  • Farmhouse Home Plans
  • Lodge House Plans
  • Shingle House Plans
Front Exterior

Bainbridge

M4300A3ST1F-0
  • Total Area:4300 Sq. Ft.
  • Stories:2
  • Bedrooms:4
  • Full Baths:3
Front Rendering

Bainbridge Crest

M4300A3ST1F-1DB
  • Total Area:5810 Sq. Ft.
  • Stories:3
  • Bedrooms:4
  • Full Baths:4
Front Rendering

Bainbridge Park

M4300A2S1F-0
  • Total Area:4556 Sq. Ft.
  • Stories:2
  • Bedrooms:4
  • Full Baths:3
Front Photo

New Blue Bungalow

M3963A-0
  • Total Area:4785 Sq. Ft.
  • Stories:3
  • Bedrooms:4
  • Full Baths:4
Front Rendering

Vancouver

M3558A2S1F-0
  • Total Area:3558 Sq. Ft.
  • Stories:2
  • Bedrooms:4
  • Full Baths:3
Front Exterior

Yellowstone

M6575A4S-0
  • Total Area:7425 Sq. Ft.
  • Stories:3
  • Bedrooms:4
  • Full Baths:4
Please enter the zip code of your building site, then select the Go! button to view pricing information for this house plan.

Recent View

© 2023 Architects Northwest All Rights Reserved Powered By: Visualwebz