Plan Pricing

$0

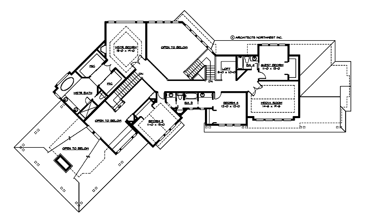
WHIDBEY ISLE

M4650A3FA-0
  • Total Area:4650 Sq. Ft.
  • Garage Area:1175 Sq Ft
  • Garage Size:3
  • Stories:2
  • Bedrooms:5
  • Full Baths:4
  • Half Baths:1
  • Width:125'-0"
  • Depth:74'-0"
  • Height:30'-0"
  • Foundation:Crawl Space
PLAN DETAILS FOR THE WHIDBEY ISLE - PLAN M4650A3FA-0
Area Summary
  • Total Area:4650 Sq. Ft.
  • Main Floor:2595 Sq. Ft.
  • Upper Floor:2055 Sq. Ft.
  • Garage Floor:1175 Sq. Ft.
General Information
  • Stories:2
  • Width:125'-0"
  • Depth:74'-0"
  • Height:30'-0"
Architectural Style
  • Craftsman
  • Lodge
  • Northwest
Number of Rooms
  • Bedrooms:5
  • Full Baths:4
  • Half Baths:1
Garage
  • Garage Size:3
  • Garage Door Location:Front
  • Garage Type: Angled
Roof Pitches
  • Primary:8:12
Wall Heights
  • Main:9'-0"
  • Upper:8'-0"
Foundation Type
  • Crawl Space
Roof Framing
  • Trusses
Floor Load
  • Live (lbs):40 PSF
  • Dead (lbs):10 PSF
Roof Load
  • Live (lbs):25 PSF
  • Dead (lbs):15 PSF
  • Wind:85 MPH
Design Features
  • Bonus Space @ & Upper Floor
  • Den/Office
  • Wrap-Around Porch
  • Great Room
  • Laundry Room @ Main Floor
  • Master Bedroom @ Upper Floor Rear
  • Craftsman House Plans
  • Lodge House Plans
  • Northwest Floor Plans
  • View Lot (Rear) Plans
  • Wide Lot House Plans
Front Exterior

Mountain Aire

M3645A3RA-0
  • Total Area:3645 Sq. Ft.
  • Stories:2
  • Bedrooms:3
  • Full Baths:2
Front Rendering

Mountain Home

M4025A3RA-0
  • Total Area:4025 Sq. Ft.
  • Stories:2
  • Bedrooms:4
  • Full Baths:2
Front Rendering

Mountain Ranch

M4530A3RA-0
  • Total Area:4530 Sq. Ft.
  • Stories:2
  • Bedrooms:5
  • Full Baths:3
Front Photo

Whidbey

M4650A3RA-0
  • Total Area:4650 Sq. Ft.
  • Stories:2
  • Bedrooms:5
  • Full Baths:4
Front Photo

Whidbey Park

M4650A3RA-5
  • Total Area:4650 Sq. Ft.
  • Stories:2
  • Bedrooms:5
  • Full Baths:4
Front Rendering

Whidbey Waters

M4650A4RA-0
  • Total Area:4375 Sq. Ft.
  • Stories:2
  • Bedrooms:4
  • Full Baths:3
Please enter the zip code of your building site, then select the Go! button to view pricing information for this house plan.

Recent View

© 2023 Architects Northwest All Rights Reserved Powered By: Visualwebz