Plan Pricing

$0

LEALAYNE COTTAGE

A855A2F-0
  • Total Area:855 Sq. Ft.
  • Garage Area:875 Sq Ft
  • Garage Size:2
  • Stories:2
  • Bedrooms:1
  • Full Baths:1
  • Width:42'-6"
  • Depth:32'-0"
  • Height:27'-6"
  • Foundation:Slab
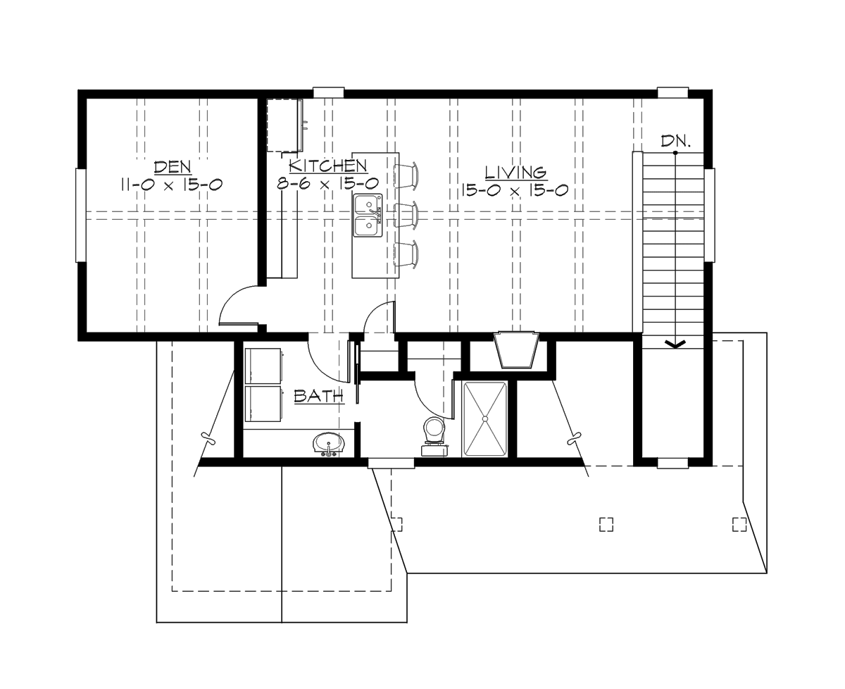
PLAN DETAILS FOR THE LEALAYNE COTTAGE - PLAN A855A2F-0
Area Summary
  • Total Area:855 Sq. Ft.
  • Main Floor:120 Sq. Ft.
  • Upper Floor:735 Sq. Ft.
  • Garage Floor:875 Sq. Ft.
General Information
  • Stories:2
  • Width:42'-6"
  • Depth:32'-0"
  • Height:27'-6"
Architectural Style
  • Cottage
  • Shingle
  • Traditional
Number of Rooms
  • Bedrooms:1
  • Full Baths:1
Garage
  • Garage Size:2
  • Garage Door Location:Front
Roof Pitches
  • Primary:12:12
  • Secondary:4:12
Wall Heights
  • Main:9'-0"
  • Upper:8'-0"
Foundation Type
  • Slab On Grade
Roof Framing
  • Combination
Floor Load
  • Live (lbs):40 PSF
  • Dead (lbs):10 PSF
Roof Load
  • Live (lbs):25 PSF
  • Dead (lbs):15 PSF
  • Wind:85 MPH
Design Features
  • Great Room
  • Laundry Room @ & Upper Floor
  • Cottage House Plans
  • Shingle House Plans
  • Traditional House Plans
  • Luxury Home Designs
  • Small House Plans
Front Rendering

Lealayne

M3540A3FA-0
  • Total Area:3540 Sq. Ft.
  • Stories:2
  • Bedrooms:4
  • Full Baths:4
Please enter the zip code of your building site, then select the Go! button to view pricing information for this house plan.

Recent View

© 2023 Architects Northwest All Rights Reserved Powered By: Visualwebz