Plan Pricing

$0

CORILISS

M1675A2R-0
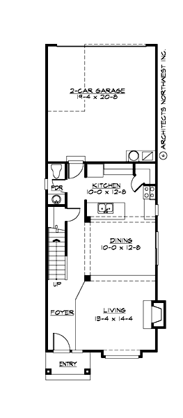
  • Total Area:1675 Sq. Ft.
  • Garage Area:420 Sq Ft
  • Garage Size:2
  • Stories:2
  • Bedrooms:4
  • Full Baths:2
  • Half Baths:1
  • Width:20'-0"
  • Depth:59'-0"
  • Height:21'-6"
  • Foundation:Crawl Space
PLAN DETAILS FOR THE CORILISS - PLAN M1675A2R-0
Area Summary
  • Total Area:1675 Sq. Ft.
  • Main Floor:688 Sq. Ft.
  • Upper Floor:987 Sq. Ft.
  • Garage Floor:420 Sq. Ft.
General Information
  • Stories:2
  • Width:20'-0"
  • Depth:59'-0"
  • Height:21'-6"
Architectural Style
  • Craftsman
  • Northwest
  • Shotgun
Number of Rooms
  • Bedrooms:4
  • Full Baths:2
  • Half Baths:1
Garage
  • Garage Size:2
  • Garage Door Location:Rear
Roof Pitches
  • Primary:5:12
Wall Heights
  • Main:8'-0"
  • Upper:8'-0"
Foundation Type
  • Crawl Space
Roof Framing
  • Trusses
Floor Load
  • Live (lbs):40 PSF
  • Dead (lbs):10 PSF
Roof Load
  • Live (lbs):25 PSF
  • Dead (lbs):15 PSF
  • Wind:85 MPH
Design Features
  • Great Room
  • Laundry Room @ & Upper Floor
  • Master Bedroom @ Upper Floor Rear
  • Craftsman House Plans
  • Northwest Floor Plans
  • Shotgun Floor Plans
  • Narrow Lot House Plans
Please enter the zip code of your building site, then select the Go! button to view pricing information for this house plan.

Recent View

© 2023 Architects Northwest All Rights Reserved Powered By: Visualwebz