Plan Pricing

$0

WILDERNESS PEAK

M4120B3FU-0
  • Total Area:4379 Sq. Ft.
  • Garage Area:1002 Sq Ft
  • Garage Size:3
  • Stories:3
  • Bedrooms:4
  • Full Baths:2
  • Half Baths:1
  • Width:59'-0"
  • Depth:59'-0"
  • Height:26'-6"
  • Foundation:Crawl Space
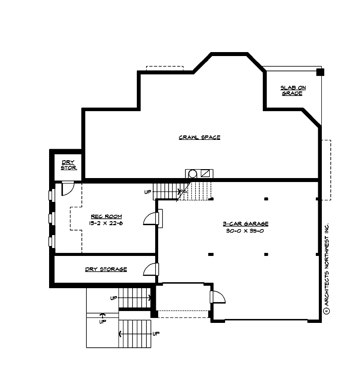
PLAN DETAILS FOR THE WILDERNESS PEAK - PLAN M4120B3FU-0
Area Summary
  • Total Area:4379 Sq. Ft.
  • Main Floor:2285 Sq. Ft.
  • Upper Floor:1726 Sq. Ft.
  • Lower Floor:368 Sq. Ft.
  • Garage Floor:1002 Sq. Ft.
General Information
  • Stories:3
  • Width:59'-0"
  • Depth:59'-0"
  • Height:26'-6"
Architectural Style
  • Craftsman
  • Lodge
  • Shingle
Number of Rooms
  • Bedrooms:4
  • Full Baths:2
  • Half Baths:1
Garage
  • Garage Size:3
  • Garage Door Location:Front
  • Garage Type: Under
Roof Pitches
  • Primary:6:12
  • Secondary:4:12
Wall Heights
  • Main:9'-0"
  • Upper:8'-0"
  • Lower:9'-0"
Foundation Type
  • Crawl Space
Roof Framing
  • Combination
Floor Load
  • Live (lbs):40 PSF
  • Dead (lbs):10 PSF
Roof Load
  • Live (lbs):25 PSF
  • Dead (lbs):15 PSF
  • Wind:85 MPH
Design Features
  • Bonus Space @ , Upper & Lower Floor
  • Den/Office
  • Wrap-Around Porch
  • Great Room
  • Laundry Room @ Main Floor
  • Master Bedroom @ Upper Floor Front
  • Craftsman House Plans
  • Lodge House Plans
  • Shingle House Plans
Front Photo

Deer Valley

M2475A3FU-0
  • Total Area:2475 Sq. Ft.
  • Stories:3
  • Bedrooms:4
  • Full Baths:2
Front Rendering

Bakersfield

M2475B3FU-0
  • Total Area:2475 Sq. Ft.
  • Stories:3
  • Bedrooms:4
  • Full Baths:2
Front Photo

Pine Bluff

M3155A2FU-0
  • Total Area:3155 Sq. Ft.
  • Stories:3
  • Bedrooms:4
  • Full Baths:3
Front Photo

Pine Crest

M3155A3FU-0
  • Total Area:3155 Sq. Ft.
  • Stories:3
  • Bedrooms:4
  • Full Baths:3
Front Exterior

Pine Woods

M3155A4FTU-0
  • Total Area:3305 Sq. Ft.
  • Stories:3
  • Bedrooms:4
  • Full Baths:3
Front Rendering

Grants Peak

M3480A3FU-0
  • Total Area:3480 Sq. Ft.
  • Stories:3
  • Bedrooms:4
  • Full Baths:4
Front Photo

Carillon Point

M4120A3FU-0
  • Total Area:4120 Sq. Ft.
  • Stories:3
  • Bedrooms:4
  • Full Baths:2
Please enter the zip code of your building site, then select the Go! button to view pricing information for this house plan.

Recent View

Front Photo

Black Nugget Lodge

R4620A3S-0
  • Total Area:4620 Sq. Ft.
  • Stories:2
  • Bedrooms:4
  • Full Baths:4
Front Photo

MacMichael

M3266B2F-0
  • Total Area:3288 Sq. Ft.
  • Stories:2
  • Bedrooms:5
  • Full Baths:3
Front Rendering

Black Diamond Lodge

R4530A3FA-0
  • Total Area:4530 Sq. Ft.
  • Stories:2
  • Bedrooms:4
  • Full Baths:4
Front Exterior

Homedale Valley

R4110A4F-0
  • Total Area:4110 Sq. Ft.
  • Stories:2
  • Bedrooms:3
  • Full Baths:3
Front Exterior

Bainbridge

M4300A3ST1F-0
  • Total Area:4300 Sq. Ft.
  • Stories:2
  • Bedrooms:4
  • Full Baths:3
Front Rendering

Colton Farm

R3245A3S-5
  • Total Area:3245 Sq. Ft.
  • Stories:1
  • Bedrooms:3
  • Full Baths:2
Front Rendering

Fieldstone Ridge

R1249A2S-1FBR
  • Total Area:2752 Sq. Ft.
  • Stories:1
  • Bedrooms:2
  • Full Baths:2
Front Rendering

Stratton

M3433B2R-0
  • Total Area:3435 Sq. Ft.
  • Stories:3
  • Bedrooms:4
  • Full Baths:2
© 2023 Architects Northwest All Rights Reserved Powered By: Visualwebz