Plan Pricing

$0

CARILLON POINT

M4120A3FU-0
  • Total Area:4120 Sq. Ft.
  • Garage Area:984 Sq Ft
  • Garage Size:3
  • Stories:3
  • Bedrooms:4
  • Full Baths:2
  • Half Baths:1
  • Width:52'-0"
  • Depth:58'-0"
  • Height:29'-6"
  • Foundation:Crawl Space
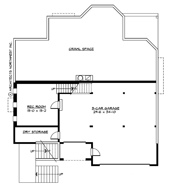
PLAN DETAILS FOR THE CARILLON POINT - PLAN M4120A3FU-0
Area Summary
  • Total Area:4120 Sq. Ft.
  • Main Floor:2195 Sq. Ft.
  • Upper Floor:1669 Sq. Ft.
  • Lower Floor:256 Sq. Ft.
  • Garage Floor:984 Sq. Ft.
General Information
  • Stories:3
  • Width:52'-0"
  • Depth:58'-0"
  • Height:29'-6"
Architectural Style
  • Cape Cod
  • Hampton
  • Shingle
Number of Rooms
  • Bedrooms:4
  • Full Baths:2
  • Half Baths:1
Garage
  • Garage Size:3
  • Garage Door Location:Front
  • Garage Type: Under
Roof Pitches
  • Primary:12:12
  • Secondary:8:12
Wall Heights
  • Main:9'-0"
  • Upper:8'-0"
  • Lower:9'-0"
Foundation Type
  • Crawl Space
Roof Framing
  • Combination
Floor Load
  • Live (lbs):40 PSF
  • Dead (lbs):10 PSF
Roof Load
  • Live (lbs):25 PSF
  • Dead (lbs):15 PSF
  • Wind:85 MPH
Design Features
  • Bonus Space @ , Upper & Lower Floor
  • Den/Office
  • Front Porch
  • Great Room
  • Laundry Room @ Main Floor
  • Master Bedroom @ Upper Floor Front
  • Cape Cod House Plans
  • Hampton House Plans
  • Shingle House Plans
Front Photo

Deer Valley

M2475A3FU-0
  • Total Area:2475 Sq. Ft.
  • Stories:3
  • Bedrooms:4
  • Full Baths:2
Front Rendering

Bakersfield

M2475B3FU-0
  • Total Area:2475 Sq. Ft.
  • Stories:3
  • Bedrooms:4
  • Full Baths:2
Front Photo

Pine Bluff

M3155A2FU-0
  • Total Area:3155 Sq. Ft.
  • Stories:3
  • Bedrooms:4
  • Full Baths:3
Front Photo

Pine Crest

M3155A3FU-0
  • Total Area:3155 Sq. Ft.
  • Stories:3
  • Bedrooms:4
  • Full Baths:3
Front Exterior

Pine Woods

M3155A4FTU-0
  • Total Area:3305 Sq. Ft.
  • Stories:3
  • Bedrooms:4
  • Full Baths:3
Front Rendering

Grants Peak

M3480A3FU-0
  • Total Area:3480 Sq. Ft.
  • Stories:3
  • Bedrooms:4
  • Full Baths:4
Front Exterior

Wilderness Peak

M4120B3FU-0
  • Total Area:4379 Sq. Ft.
  • Stories:3
  • Bedrooms:4
  • Full Baths:2
Please enter the zip code of your building site, then select the Go! button to view pricing information for this house plan.

Recent View

Front Rendering

Lealayne Cottage

A855A2F-0
  • Total Area:855 Sq. Ft.
  • Stories:2
  • Bedrooms:1
  • Full Baths:1
© 2023 Architects Northwest All Rights Reserved Powered By: Visualwebz